20 лет инноваций в отделочных материалах.
Каталог
По всему сайту
По каталогу
Каталог
Минеральные потолки
Эконом
Стандартный
Негорючий и влагостойкий
Акустический
Гигиенический
Грильято
Стандартная ячейка
GL-15
GL-24
GL15 Жалюзи
D15 Диагональное
GL-24 Жалюзи
Треугольное
Нестандартная ячейка
Жалюзи
Пирамидальный
Разноуровневый
Кассетные потолки
Открытая подвесная система АЛБЕС
Скрытая подвесная система АЛБЕС
Армстронг LAY-IN
Армстронг PLANKS
Армстронг Clip In
Коридорные панели
Реечные потолки
Кубообразный дизайн
Omega дизайн
S-дизайн
V-образный дизайн
Итальянский дизайн
Немецкий дизайн
Пластинообразный дизайн
Прямоугольный дизайн
Акустические острова
Армстронг OPTIMA L Canopy
Армстронг OPTIMA Curved Canopy
Армстронг OPTIMA Baffle / Baffle Curves
Албес Sound Prof
Экофон Соло
Экофон Баффл
Рокфон Эклипс
Подвесная система
Кнауф Т24
Кнауф Т15
Кнауф Cилуэт
Т-15 Албес Struna
T-24 Албес Click Prim
T-24 Албес Евро
T-24 Албес Prim Line
T-15 Албес
T-15/29 Албес Prim
T-15/38 Албес GL-15
T-15/38 Албес Prim
T-24 Албес
T-24 Албес Norma
Пристенный молдинг
Подвесы
Аксессуар к подвесным системам
Межкомнатные двери
Комплектующие для дверей
Фурнитура
Светильники
Потолочные светильники
Светильник для Грильято
Подвесные светильники
Сантехника
Смесители для раковины
Смесители для кухни
Смесители для ванны
Смесители для биде
Изливы для ванны
Вентили и переключатели
Душевые системы
Раковины
Унитазы напольные и подвесные
Унитазы с бачком
Писсуары
Инсталляции для унитаза
Клавиши смыва
Аксессуары для ванной комнаты
Напольные покрытия
Акции
Услуги
Блог
Бренды
Как купить
Условия оплаты
Условия доставки
Гарантия на товар
Вопрос-ответ
Онлайн расчёт потолка
Компания
О компании
Сотрудничество
Наши клиенты
Контакты
Новости
Отзывы
Карьера
Сертификаты
Галерея
Контакты
+7 (3552) 28-83-90
Заказать звонок
Задать вопрос
Ваш город
Тюмень
info@avangard-ekb.ru
  • Вконтакте
  • Instagram
  • Telegram
  • Яндекс.Дзен
Ваш город
Тюмень
+7 (3552) 28-83-90
Заказать звонок
  • Акции
  • Проекты
  • Блог
  • Компания
  • Контакты
  • Как купить
  • Калькулятор
  • ...
    Каталог
    Армстронг
    Албес
    Оптимус Сити
    Рокфон
    Экофон
    Капели
    DURAY
    Escco by Jaquar
    Gerflor
    Jaquar
    ALDOX
    ПромСтройАвтоматика
    • Минеральные потолки
      • Эконом
      • Стандартный
      • Негорючий и влагостойкий
      • Акустический
      • Гигиенический
    • Грильято
      • Стандартная ячейка
      • GL-15
      • GL-24
      • GL15 Жалюзи
      • D15 Диагональное
      • GL-24 Жалюзи
      • Треугольное
      • Нестандартная ячейка
      • Жалюзи
      • Пирамидальный
      • Разноуровневый
      • Ещё 6
    • Кассетные потолки
      • Открытая подвесная система АЛБЕС
      • Скрытая подвесная система АЛБЕС
      • Армстронг LAY-IN
      • Армстронг PLANKS
      • Армстронг Clip In
      • Коридорные панели
      • Ещё 1
    • Реечные потолки
      • Кубообразный дизайн
      • Omega дизайн
      • S-дизайн
      • V-образный дизайн
      • Итальянский дизайн
      • Немецкий дизайн
      • Пластинообразный дизайн
      • Прямоугольный дизайн
      • Ещё 3
    • Акустические острова
      • Армстронг OPTIMA L Canopy
      • Армстронг OPTIMA Curved Canopy
      • Армстронг OPTIMA Baffle / Baffle Curves
      • Албес Sound Prof
      • Экофон Соло
      • Экофон Баффл
      • Рокфон Эклипс
      • Ещё 2
    • Подвесная система
      • Кнауф Т24
      • Кнауф Т15
      • Кнауф Cилуэт
      • Т-15 Албес Struna
      • T-24 Албес Click Prim
      • T-24 Албес Евро
      • T-24 Албес Prim Line
      • T-15 Албес
      • T-15/29 Албес Prim
      • T-15/38 Албес GL-15
      • T-15/38 Албес Prim
      • T-24 Албес
      • T-24 Албес Norma
      • Пристенный молдинг
      • Подвесы
      • Аксессуар к подвесным системам
      • Ещё 11
    • Межкомнатные двери
      • Комплектующие для дверей
      • Фурнитура
    • Светильники
      • Потолочные светильники
      • Светильник для Грильято
      • Подвесные светильники
    • Сантехника
      • Смесители для раковины
      • Смесители для кухни
      • Смесители для ванны
      • Смесители для биде
      • Изливы для ванны
      • Вентили и переключатели
      • Душевые системы
      • Раковины
      • Унитазы напольные и подвесные
      • Унитазы с бачком
      • Писсуары
      • Инсталляции для унитаза
      • Клавиши смыва
      • Аксессуары для ванной комнаты
      • Ещё 9
    • Напольные покрытия
    Каталог
    По всему сайту
    По каталогу
    • Минеральные потолки
    • Грильято
    • Кассетные потолки
    • Реечные потолки
    • Подвесная система
    • Сантехника
    • Светотехника
    • Межкомнатные двери
    Акции ✨ Хиты продаж
    Ваш город
    Тюмень
    +7 (3552) 28-83-90
    Заказать звонок
    Телефоны
    +7 (3552) 28-83-90Отдел продаж
    Заказать звонок
    • Каталог
      • Назад
      • Каталог
      • Минеральные потолки
        • Назад
        • Минеральные потолки
        • Эконом
        • Стандартный
        • Негорючий и влагостойкий
        • Акустический
        • Гигиенический
      • Грильято
        • Назад
        • Грильято
        • Стандартная ячейка
        • GL-15
        • GL-24
        • GL15 Жалюзи
        • D15 Диагональное
        • GL-24 Жалюзи
        • Треугольное
        • Нестандартная ячейка
        • Жалюзи
        • Пирамидальный
        • Разноуровневый
      • Кассетные потолки
        • Назад
        • Кассетные потолки
        • Открытая подвесная система АЛБЕС
        • Скрытая подвесная система АЛБЕС
        • Армстронг LAY-IN
        • Армстронг PLANKS
        • Армстронг Clip In
        • Коридорные панели
      • Реечные потолки
        • Назад
        • Реечные потолки
        • Кубообразный дизайн
        • Omega дизайн
        • S-дизайн
        • V-образный дизайн
        • Итальянский дизайн
        • Немецкий дизайн
        • Пластинообразный дизайн
        • Прямоугольный дизайн
      • Акустические острова
        • Назад
        • Акустические острова
        • Армстронг OPTIMA L Canopy
        • Армстронг OPTIMA Curved Canopy
        • Армстронг OPTIMA Baffle / Baffle Curves
        • Албес Sound Prof
        • Экофон Соло
        • Экофон Баффл
        • Рокфон Эклипс
      • Подвесная система
        • Назад
        • Подвесная система
        • Кнауф Т24
        • Кнауф Т15
        • Кнауф Cилуэт
        • Т-15 Албес Struna
        • T-24 Албес Click Prim
        • T-24 Албес Евро
        • T-24 Албес Prim Line
        • T-15 Албес
        • T-15/29 Албес Prim
        • T-15/38 Албес GL-15
        • T-15/38 Албес Prim
        • T-24 Албес
        • T-24 Албес Norma
        • Пристенный молдинг
        • Подвесы
        • Аксессуар к подвесным системам
      • Межкомнатные двери
        • Назад
        • Межкомнатные двери
        • Комплектующие для дверей
        • Фурнитура
      • Светильники
        • Назад
        • Светильники
        • Потолочные светильники
        • Светильник для Грильято
        • Подвесные светильники
      • Сантехника
        • Назад
        • Сантехника
        • Смесители для раковины
        • Смесители для кухни
        • Смесители для ванны
        • Смесители для биде
        • Изливы для ванны
        • Вентили и переключатели
        • Душевые системы
        • Раковины
        • Унитазы напольные и подвесные
        • Унитазы с бачком
        • Писсуары
        • Инсталляции для унитаза
        • Клавиши смыва
        • Аксессуары для ванной комнаты
      • Напольные покрытия
    • Акции
    • Услуги
    • Блог
    • Бренды
    • Как купить
      • Назад
      • Как купить
      • Условия оплаты
      • Условия доставки
      • Гарантия на товар
      • Вопрос-ответ
      • Онлайн расчёт потолка
    • Компания
      • Назад
      • Компания
      • О компании
      • Сотрудничество
      • Наши клиенты
      • Контакты
      • Новости
      • Отзывы
      • Карьера
      • Сертификаты
    • Галерея
    • Контакты
    • +7 (3552) 28-83-90Отдел продаж
    Контактная информация
    info@avangard-ekb.ru
    • Вконтакте
    • Instagram
    • Telegram
    • Яндекс.Дзен

    Подвесные потолки Грильято Жалюзи

    48
    Главная
    —
    Каталог
    —
    Грильято
    —Жалюзи
    Подвесные потолки Грильято Жалюзи представляют собой решетчатую конструкцию с вытянутыми прямоугольными ячейками, напоминающими жалюзи. Такая система не только придает помещению современный и стильный вид, но и обеспечивает отличную вентиляцию и светопропускание.
    Фильтр
    В наличии (убывание)
    По популярности (убывание)
    По популярности (возрастание)
    По алфавиту (убывание)
    По алфавиту (возрастание)
    По цене (убывание)
    По цене (возрастание)
    В наличии (убывание)
    В наличии (возрастание)
    Грильято Жалюзи ячейка 300x50 мм, белый матовый, высота 30 / 50 мм, ширина 10 мм Грильято Жалюзи ячейка 300x50 мм, белый матовый, высота 30 / 50 мм, ширина 10 мм Грильято Жалюзи ячейка 300x50 мм, белый матовый, высота 30 / 50 мм, ширина 10 мм Грильято Жалюзи ячейка 300x50 мм, белый матовый, высота 30 / 50 мм, ширина 10 мм
    Потолок Грильято Жалюзи ячейка 300x50 мм, белый матовый, высота 30 / 50 мм, ширина 10 мм
    Под заказ
    Арт.: 4005 4018
    8 652.65 ₽/м2
    Варианты цен
    8 652.65 ₽/м2
    Подробности
    Под заказ
    Наши менеджеры обязательно свяжутся с вами и уточнят условия заказа
    Под заказ
    Наши менеджеры обязательно свяжутся с вами и уточнят условия заказа
    Грильято Жалюзи ячейка 300x50 мм, металлик, высота 30 / 50 мм, ширина 10 мм Грильято Жалюзи ячейка 300x50 мм, металлик, высота 30 / 50 мм, ширина 10 мм Грильято Жалюзи ячейка 300x50 мм, металлик, высота 30 / 50 мм, ширина 10 мм Грильято Жалюзи ячейка 300x50 мм, металлик, высота 30 / 50 мм, ширина 10 мм
    Потолок Грильято Жалюзи ячейка 300x50 мм, металлик, высота 30 / 50 мм, ширина 10 мм
    Под заказ
    Арт.: 4004 4017
    9 221.38 ₽/м2
    Варианты цен
    9 221.38 ₽/м2
    Подробности
    Под заказ
    Наши менеджеры обязательно свяжутся с вами и уточнят условия заказа
    Под заказ
    Наши менеджеры обязательно свяжутся с вами и уточнят условия заказа
    Грильято Жалюзи ячейка 300x50 мм, металлик матовый, высота 30 / 50 мм, ширина 10 мм Грильято Жалюзи ячейка 300x50 мм, металлик матовый, высота 30 / 50 мм, ширина 10 мм Грильято Жалюзи ячейка 300x50 мм, металлик матовый, высота 30 / 50 мм, ширина 10 мм Грильято Жалюзи ячейка 300x50 мм, металлик матовый, высота 30 / 50 мм, ширина 10 мм
    Потолок Грильято Жалюзи ячейка 300x50 мм, металлик матовый, высота 30 / 50 мм, ширина 10 мм
    Под заказ
    Арт.: 4007 4020
    12 070.66 ₽/м2
    Варианты цен
    12 070.66 ₽/м2
    Подробности
    Под заказ
    Наши менеджеры обязательно свяжутся с вами и уточнят условия заказа
    Под заказ
    Наши менеджеры обязательно свяжутся с вами и уточнят условия заказа
    Грильято Жалюзи ячейка 300x50 мм, черный, высота 30 / 50 мм, ширина 10 мм Грильято Жалюзи ячейка 300x50 мм, черный, высота 30 / 50 мм, ширина 10 мм Грильято Жалюзи ячейка 300x50 мм, черный, высота 30 / 50 мм, ширина 10 мм Грильято Жалюзи ячейка 300x50 мм, черный, высота 30 / 50 мм, ширина 10 мм
    Потолок Грильято Жалюзи ячейка 300x50 мм, черный, высота 30 / 50 мм, ширина 10 мм
    Под заказ
    Арт.: 4006 4019
    10 079.07 ₽/м2
    Варианты цен
    10 079.07 ₽/м2
    Подробности
    Под заказ
    Наши менеджеры обязательно свяжутся с вами и уточнят условия заказа
    Под заказ
    Наши менеджеры обязательно свяжутся с вами и уточнят условия заказа
    Грильято Жалюзи ячейка 300x50 мм, супер-хром, высота 30 / 50 мм, ширина 10 мм Грильято Жалюзи ячейка 300x50 мм, супер-хром, высота 30 / 50 мм, ширина 10 мм Грильято Жалюзи ячейка 300x50 мм, супер-хром, высота 30 / 50 мм, ширина 10 мм Грильято Жалюзи ячейка 300x50 мм, супер-хром, высота 30 / 50 мм, ширина 10 мм
    Потолок Грильято Жалюзи ячейка 300x50 мм, супер-хром, высота 30 / 50 мм, ширина 10 мм
    Под заказ
    Арт.: 3997 4010
    14 279.48 ₽/м2
    Варианты цен
    14 279.48 ₽/м2
    Подробности
    Под заказ
    Наши менеджеры обязательно свяжутся с вами и уточнят условия заказа
    Под заказ
    Наши менеджеры обязательно свяжутся с вами и уточнят условия заказа
    Грильято Жалюзи ячейка 300x50 мм, окраска по RAL, высота 30 / 50 мм, ширина 10 мм Грильято Жалюзи ячейка 300x50 мм, окраска по RAL, высота 30 / 50 мм, ширина 10 мм Грильято Жалюзи ячейка 300x50 мм, окраска по RAL, высота 30 / 50 мм, ширина 10 мм Грильято Жалюзи ячейка 300x50 мм, окраска по RAL, высота 30 / 50 мм, ширина 10 мм
    Потолок Грильято Жалюзи ячейка 300x50 мм, окраска по RAL, высота 30 / 50 мм, ширина 10 мм
    Под заказ
    По запросу
    Под заказ
    Наши менеджеры обязательно свяжутся с вами и уточнят условия заказа
    Под заказ
    Наши менеджеры обязательно свяжутся с вами и уточнят условия заказа
    Грильято Жалюзи ячейка 300x60 мм, белый матовый, высота 30 / 50 мм, ширина 10 мм Грильято Жалюзи ячейка 300x60 мм, белый матовый, высота 30 / 50 мм, ширина 10 мм Грильято Жалюзи ячейка 300x60 мм, белый матовый, высота 30 / 50 мм, ширина 10 мм Грильято Жалюзи ячейка 300x60 мм, белый матовый, высота 30 / 50 мм, ширина 10 мм
    Потолок Грильято Жалюзи ячейка 300x60 мм, белый матовый, высота 30 / 50 мм, ширина 10 мм
    Под заказ
    Арт.: 4005 4018
    7 374.01 ₽/м2
    Варианты цен
    7 374.01 ₽/м2
    Подробности
    Под заказ
    Наши менеджеры обязательно свяжутся с вами и уточнят условия заказа
    Под заказ
    Наши менеджеры обязательно свяжутся с вами и уточнят условия заказа
    Грильято Жалюзи ячейка 300x60 мм, металлик, высота 30 / 50 мм, ширина 10 мм Грильято Жалюзи ячейка 300x60 мм, металлик, высота 30 / 50 мм, ширина 10 мм Грильято Жалюзи ячейка 300x60 мм, металлик, высота 30 / 50 мм, ширина 10 мм Грильято Жалюзи ячейка 300x60 мм, металлик, высота 30 / 50 мм, ширина 10 мм
    Потолок Грильято Жалюзи ячейка 300x60 мм, металлик, высота 30 / 50 мм, ширина 10 мм
    Под заказ
    Арт.: 4004 4017
    7 853.40 ₽/м2
    Варианты цен
    7 853.40 ₽/м2
    Подробности
    Под заказ
    Наши менеджеры обязательно свяжутся с вами и уточнят условия заказа
    Под заказ
    Наши менеджеры обязательно свяжутся с вами и уточнят условия заказа
    Грильято Жалюзи ячейка 300x60 мм, металлик матовый, высота 30 / 50 мм, ширина 10 мм Грильято Жалюзи ячейка 300x60 мм, металлик матовый, высота 30 / 50 мм, ширина 10 мм Грильято Жалюзи ячейка 300x60 мм, металлик матовый, высота 30 / 50 мм, ширина 10 мм Грильято Жалюзи ячейка 300x60 мм, металлик матовый, высота 30 / 50 мм, ширина 10 мм
    Потолок Грильято Жалюзи ячейка 300x60 мм, металлик матовый, высота 30 / 50 мм, ширина 10 мм
    Под заказ
    Арт.: 4007 4020
    10 278.67 ₽/м2
    Варианты цен
    10 278.67 ₽/м2
    Подробности
    Под заказ
    Наши менеджеры обязательно свяжутся с вами и уточнят условия заказа
    Под заказ
    Наши менеджеры обязательно свяжутся с вами и уточнят условия заказа
    Грильято Жалюзи ячейка 300x60 мм, черный, высота 30 / 50 мм, ширина 10 мм Грильято Жалюзи ячейка 300x60 мм, черный, высота 30 / 50 мм, ширина 10 мм Грильято Жалюзи ячейка 300x60 мм, черный, высота 30 / 50 мм, ширина 10 мм Грильято Жалюзи ячейка 300x60 мм, черный, высота 30 / 50 мм, ширина 10 мм
    Потолок Грильято Жалюзи ячейка 300x60 мм, черный, высота 30 / 50 мм, ширина 10 мм
    Под заказ
    Арт.: 4006 4019
    8 587.01 ₽/м2
    Варианты цен
    8 587.01 ₽/м2
    Подробности
    Под заказ
    Наши менеджеры обязательно свяжутся с вами и уточнят условия заказа
    Под заказ
    Наши менеджеры обязательно свяжутся с вами и уточнят условия заказа
    Грильято Жалюзи ячейка 300x60 мм, окраска по RAL, высота 30 / 50 мм, ширина 10 мм Грильято Жалюзи ячейка 300x60 мм, окраска по RAL, высота 30 / 50 мм, ширина 10 мм Грильято Жалюзи ячейка 300x60 мм, окраска по RAL, высота 30 / 50 мм, ширина 10 мм Грильято Жалюзи ячейка 300x60 мм, окраска по RAL, высота 30 / 50 мм, ширина 10 мм
    Потолок Грильято Жалюзи ячейка 300x60 мм, окраска по RAL, высота 30 / 50 мм, ширина 10 мм
    Под заказ
    По запросу
    Под заказ
    Наши менеджеры обязательно свяжутся с вами и уточнят условия заказа
    Под заказ
    Наши менеджеры обязательно свяжутся с вами и уточнят условия заказа
    Грильято Жалюзи ячейка 300x75 мм, белый матовый, высота 30 / 50 мм, ширина 10 мм Грильято Жалюзи ячейка 300x75 мм, белый матовый, высота 30 / 50 мм, ширина 10 мм Грильято Жалюзи ячейка 300x75 мм, белый матовый, высота 30 / 50 мм, ширина 10 мм Грильято Жалюзи ячейка 300x75 мм, белый матовый, высота 30 / 50 мм, ширина 10 мм
    Потолок Грильято Жалюзи ячейка 300x75 мм, белый матовый, высота 30 / 50 мм, ширина 10 мм
    Под заказ
    Арт.: 4005 4018
    6 095.35 ₽/м2
    Варианты цен
    6 095.35 ₽/м2
    Подробности
    Под заказ
    Наши менеджеры обязательно свяжутся с вами и уточнят условия заказа
    Под заказ
    Наши менеджеры обязательно свяжутся с вами и уточнят условия заказа
    Грильято Жалюзи ячейка 300x60 мм, супер-хром, высота 30 / 50 мм, ширина 10 мм Грильято Жалюзи ячейка 300x60 мм, супер-хром, высота 30 / 50 мм, ширина 10 мм Грильято Жалюзи ячейка 300x60 мм, супер-хром, высота 30 / 50 мм, ширина 10 мм Грильято Жалюзи ячейка 300x60 мм, супер-хром, высота 30 / 50 мм, ширина 10 мм
    Потолок Грильято Жалюзи ячейка 300x60 мм, супер-хром, высота 30 / 50 мм, ширина 10 мм
    Под заказ
    Арт.: 3997 4010
    12 188.89 ₽/м2
    Варианты цен
    12 188.89 ₽/м2
    Подробности
    Под заказ
    Наши менеджеры обязательно свяжутся с вами и уточнят условия заказа
    Под заказ
    Наши менеджеры обязательно свяжутся с вами и уточнят условия заказа
    Грильято Жалюзи ячейка 300x75 мм, металлик, высота 30 / 50 мм, ширина 10 мм Грильято Жалюзи ячейка 300x75 мм, металлик, высота 30 / 50 мм, ширина 10 мм Грильято Жалюзи ячейка 300x75 мм, металлик, высота 30 / 50 мм, ширина 10 мм Грильято Жалюзи ячейка 300x75 мм, металлик, высота 30 / 50 мм, ширина 10 мм
    Потолок Грильято Жалюзи ячейка 300x75 мм, металлик, высота 30 / 50 мм, ширина 10 мм
    Под заказ
    Арт.: 4004 4017
    6 485.42 ₽/м2
    Варианты цен
    6 485.42 ₽/м2
    Подробности
    Под заказ
    Наши менеджеры обязательно свяжутся с вами и уточнят условия заказа
    Под заказ
    Наши менеджеры обязательно свяжутся с вами и уточнят условия заказа
    Грильято Жалюзи ячейка 300x75 мм, металлик матовый, высота 30 / 50 мм, ширина 10 мм Грильято Жалюзи ячейка 300x75 мм, металлик матовый, высота 30 / 50 мм, ширина 10 мм Грильято Жалюзи ячейка 300x75 мм, металлик матовый, высота 30 / 50 мм, ширина 10 мм Грильято Жалюзи ячейка 300x75 мм, металлик матовый, высота 30 / 50 мм, ширина 10 мм
    Потолок Грильято Жалюзи ячейка 300x75 мм, металлик матовый, высота 30 / 50 мм, ширина 10 мм
    Под заказ
    Арт.: 4007 4020
    8 486.67 ₽/м2
    Варианты цен
    8 486.67 ₽/м2
    Подробности
    Под заказ
    Наши менеджеры обязательно свяжутся с вами и уточнят условия заказа
    Под заказ
    Наши менеджеры обязательно свяжутся с вами и уточнят условия заказа
    Грильято Жалюзи ячейка 300x75 мм, черный, высота 30 / 50 мм, ширина 10 мм Грильято Жалюзи ячейка 300x75 мм, черный, высота 30 / 50 мм, ширина 10 мм Грильято Жалюзи ячейка 300x75 мм, черный, высота 30 / 50 мм, ширина 10 мм Грильято Жалюзи ячейка 300x75 мм, черный, высота 30 / 50 мм, ширина 10 мм
    Потолок Грильято Жалюзи ячейка 300x75 мм, черный, высота 30 / 50 мм, ширина 10 мм
    Под заказ
    Арт.: 4006 4019
    7 094.92 ₽/м2
    Варианты цен
    7 094.92 ₽/м2
    Подробности
    Под заказ
    Наши менеджеры обязательно свяжутся с вами и уточнят условия заказа
    Под заказ
    Наши менеджеры обязательно свяжутся с вами и уточнят условия заказа
    Грильято Жалюзи ячейка 300x75 мм, супер-хром, высота 30 / 50 мм, ширина 10 мм Грильято Жалюзи ячейка 300x75 мм, супер-хром, высота 30 / 50 мм, ширина 10 мм Грильято Жалюзи ячейка 300x75 мм, супер-хром, высота 30 / 50 мм, ширина 10 мм Грильято Жалюзи ячейка 300x75 мм, супер-хром, высота 30 / 50 мм, ширина 10 мм
    Потолок Грильято Жалюзи ячейка 300x75 мм, супер-хром, высота 30 / 50 мм, ширина 10 мм
    Под заказ
    Арт.: 3997 4010
    10 098.29 ₽/м2
    Варианты цен
    10 098.29 ₽/м2
    Подробности
    Под заказ
    Наши менеджеры обязательно свяжутся с вами и уточнят условия заказа
    Под заказ
    Наши менеджеры обязательно свяжутся с вами и уточнят условия заказа
    Грильято Жалюзи ячейка 300x75 мм, окраска по RAL, высота 30 / 50 мм, ширина 10 мм Грильято Жалюзи ячейка 300x75 мм, окраска по RAL, высота 30 / 50 мм, ширина 10 мм Грильято Жалюзи ячейка 300x75 мм, окраска по RAL, высота 30 / 50 мм, ширина 10 мм Грильято Жалюзи ячейка 300x75 мм, окраска по RAL, высота 30 / 50 мм, ширина 10 мм
    Потолок Грильято Жалюзи ячейка 300x75 мм, окраска по RAL, высота 30 / 50 мм, ширина 10 мм
    Под заказ
    По запросу
    Под заказ
    Наши менеджеры обязательно свяжутся с вами и уточнят условия заказа
    Под заказ
    Наши менеджеры обязательно свяжутся с вами и уточнят условия заказа
    Грильято Жалюзи ячейка 300x86 мм, белый матовый, высота 30 / 50 мм, ширина 10 мм Грильято Жалюзи ячейка 300x86 мм, белый матовый, высота 30 / 50 мм, ширина 10 мм Грильято Жалюзи ячейка 300x86 мм, белый матовый, высота 30 / 50 мм, ширина 10 мм Грильято Жалюзи ячейка 300x86 мм, белый матовый, высота 30 / 50 мм, ширина 10 мм
    Потолок Грильято Жалюзи ячейка 300x86 мм, белый матовый, высота 30 / 50 мм, ширина 10 мм
    Под заказ
    Арт.: 4005 4018
    5 456.04 ₽/м2
    Варианты цен
    5 456.04 ₽/м2
    Подробности
    Под заказ
    Наши менеджеры обязательно свяжутся с вами и уточнят условия заказа
    Под заказ
    Наши менеджеры обязательно свяжутся с вами и уточнят условия заказа
    Грильято Жалюзи ячейка 300x86 мм, металлик, высота 30 / 50 мм, ширина 10 мм Грильято Жалюзи ячейка 300x86 мм, металлик, высота 30 / 50 мм, ширина 10 мм Грильято Жалюзи ячейка 300x86 мм, металлик, высота 30 / 50 мм, ширина 10 мм Грильято Жалюзи ячейка 300x86 мм, металлик, высота 30 / 50 мм, ширина 10 мм
    Потолок Грильято Жалюзи ячейка 300x86 мм, металлик, высота 30 / 50 мм, ширина 10 мм
    Под заказ
    Арт.: 4004 4017
    5 801.42 ₽/м2
    Варианты цен
    5 801.42 ₽/м2
    Подробности
    Под заказ
    Наши менеджеры обязательно свяжутся с вами и уточнят условия заказа
    Под заказ
    Наши менеджеры обязательно свяжутся с вами и уточнят условия заказа
    Показать еще
    1 2 3
    Монтаж подвесных потолков Грильято: пошаговая инструкция для качественного результата
    Технические аспекты и монтаж
    16 июля 2024
    Монтаж подвесных потолков Грильято: пошаговая инструкция для качественного результата

    Потолки Грильято Жалюзи: инновационный дизайн и функциональность

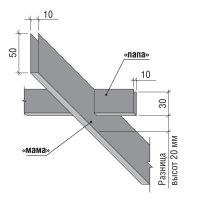
    Потолки Грильято Жалюзи представляют собой подвесные системы, состоящие из решётчатых панелей, образованных пересекающимися окрашенными профилями типа «мама» и «папа». По периметру каждая решётка обрамлена L-образными профилями. Такая конструкция создаёт эффект раскрытых жалюзи, придавая помещению современный и динамичный вид.

    Преимущества потолков Грильято Жалюзи

    • Современный дизайн: Оригинальная структура решётки создаёт стильный и динамичный вид, придавая помещению уникальность.
    • Удобство монтажа и демонтажа: Система позволяет быстро устанавливать и снимать отдельные решётки, обеспечивая лёгкий доступ к коммуникациям.
    • Улучшенная вентиляция: Открытая структура потолка способствует свободной циркуляции воздуха, что особенно важно в помещениях с высокими требованиями к вентиляции.
    • Пожарная безопасность: Материалы, используемые в конструкции, соответствуют современным требованиям пожарной защиты.
    • Долговечность: Потолки устойчивы к влаге и высоким температурам, не требуют дополнительной антикоррозийной обработки.

    Технические характеристики

    • Размеры ячеек: 300×50 мм, 300×60 мм, 300×75 мм, 300×86 мм, 300×100 мм, 300×120 мм, 300×150 мм, 300×200 мм
    • Размер решётки: 600×1200 мм
    • Высота профилей «мама»/«направляющая»: 50 мм
    • Высота профилей «папа»: 30 мм
    • Ширина видимой части профилей (база): 10 мм
    • Материал изготовления: алюминий толщиной 0,3–0,4 мм
    • Температура эксплуатации: не выше +90 °C
    • Зона влажности: сухая, нормальная, влажная (по СНиП 23-02-2003)
    • Пожарная безопасность:
      • Горючесть: НГ, Г1
      • Воспламеняемость: В1
      • Токсичность: Т1
      • Дымообразующая способность: Д1

    Почему выбирают компанию «Авангард»

    С 2005 года компания «Авангард» успешно работает на рынке строительных и отделочных материалов, предоставляя своим клиентам качественные решения для коммерческих и общественных объектов. Мы гордимся своей репутацией надёжного партнёра и предлагаем:

    • Профессиональные консультации: Наши специалисты помогут с выбором потолков Грильято Жалюзи, опираясь на ваши требования и специфику проекта.
    • Доставка по всей России: Оперативная доставка продукции в любую точку страны.
    • Оптовые закупки: Идеальное решение для крупных заказов с выгодными условиями.
    • Гарантия качества: Все товары проходят строгий контроль качества и соответствуют стандартам.
    • Срочное исполнение заказов: Мы готовы оперативно обработать ваш заказ.

    Как заказать потолки в компании «Авангард»

    1. Выберите подходящую модель в нашем каталоге.
    2. Добавьте товар в корзину.
    3. Оформите заказ, заполнив необходимые данные.
    4. Выберите удобный способ доставки и оплаты.
    5. Подтвердите заказ и ожидайте звонка нашего менеджера для уточнения деталей.

    Компания «Авангард» — надёжный выбор для вашего бизнеса.
    Мы поможем создать стильное и функциональное пространство с помощью современных потолков Грильято Жалюзи. Оставьте заявку сегодня и начните новый проект с качественными материалами!


    Фильтр
    Сортировка
    По популярности (убывание)
    • По популярности (убывание)
    • По популярности (возрастание)
    • По алфавиту (убывание)
    • По алфавиту (возрастание)
    • По цене (убывание)
    • По цене (возрастание)
    Цена
    2 376.01
    4 708.01
    7 040.01
    9 372.01
    11 704.49
    Производитель
    Цвет
    ?
    Цветовая палитра по каталогу RAL
    Ничего не нашлось
    Показать все
    Размер ячейки, мм
    Показать все
    Подвесная система
    Материал
    Класс пожарной безопасности
    Выбрано 0 Показать
    Выбрано 0 Показать
    Каталог
    • Минеральные потолки
      • Эконом
      • Стандартный
      • Негорючий и влагостойкий
      • Акустический
      • Гигиенический
    • Грильято
      • Стандартная ячейка
      • GL-15
      • GL-24
      • GL15 Жалюзи
      • D15 Диагональное
      • GL-24 Жалюзи
      • Треугольное
      • Нестандартная ячейка
      • Жалюзи
      • Пирамидальный
      • Разноуровневый
    • Кассетные потолки
      • Открытая подвесная система АЛБЕС
      • Скрытая подвесная система АЛБЕС
      • Армстронг LAY-IN
      • Армстронг PLANKS
      • Армстронг Clip In
      • Коридорные панели
    • Реечные потолки
      • Кубообразный дизайн
      • Omega дизайн
      • S-дизайн
      • V-образный дизайн
      • Итальянский дизайн
      • Немецкий дизайн
      • Пластинообразный дизайн
      • Прямоугольный дизайн
    • Акустические острова
      • Армстронг OPTIMA L Canopy
      • Армстронг OPTIMA Curved Canopy
      • Армстронг OPTIMA Baffle / Baffle Curves
      • Албес Sound Prof
      • Экофон Соло
      • Экофон Баффл
      • Рокфон Эклипс
    • Подвесная система
      • Кнауф Т24
      • Кнауф Т15
      • Кнауф Cилуэт
      • Т-15 Албес Struna
      • T-24 Албес Click Prim
      • T-24 Албес Евро
      • T-24 Албес Prim Line
      • T-15 Албес
      • T-15/29 Албес Prim
      • T-15/38 Албес GL-15
      • T-15/38 Албес Prim
      • T-24 Албес
      • T-24 Албес Norma
      • Пристенный молдинг
      • Подвесы
      • Аксессуар к подвесным системам
    • Межкомнатные двери
      • Комплектующие для дверей
      • Фурнитура
    • Светильники
      • Потолочные светильники
      • Светильник для Грильято
      • Подвесные светильники
    • Сантехника
      • Смесители для раковины
      • Смесители для кухни
      • Смесители для ванны
      • Смесители для биде
      • Изливы для ванны
      • Вентили и переключатели
      • Душевые системы
      • Раковины
      • Унитазы напольные и подвесные
      • Унитазы с бачком
      • Писсуары
      • Инсталляции для унитаза
      • Клавиши смыва
      • Аксессуары для ванной комнаты
    • Напольные покрытия
    Сайт эсско
    Будьте в курсе наших акций и новостей
    Подписаться
    Новости
    25 декабря 2025
    График работы компании Авангард в Новогодние каникулы 2026
    29 апреля 2025
    График работы офиса и склада на майские праздники 2025
    1 апреля 2025
    Ecophon объявил о смене бренда: теперь — Vetonit
    Статьи
    30 июля 2025
    Почему акустические острова становятся must-have элементом современного офиса
    15 июля 2025
    Монтаж реечного потолка Кубота: пошаговая инструкция для качественного результата
    20 января 2025
    Звуковая среда в розничной торговле: как акустика влияет на продажи и поведение покупателей
    Каталог
    Акции
    Калькуляторы
    Бренды
    Сотрудничество
    Галерея
    Компания
    О компании
    Сотрудничество
    Наши клиенты
    Контакты
    Новости
    Отзывы
    Карьера
    Сертификаты
    Информация
    Офисы компании
    Условия оплаты
    Условия доставки
    Гарантия на товар
    Реквизиты
    Политика
    Помощь
    Условия оплаты
    Условия доставки
    Гарантия на товар
    Вопрос-ответ
    Обзоры
    Идеи интерьера
    Онлайн расчёт потолка
    Подписаться на рассылку
    +7 (3552) 28-83-90
    Заказать звонок
    info@avangard-ekb.ru
    • Вконтакте
    • Instagram
    • Telegram
    • Яндекс.Дзен
    2026 © Авангард: Выше всех стандартов — 20 лет инноваций в отделочных материалах!
    Каталог
    По всему сайту
    По каталогу